Jouw persoonlijke elektricien - VCA veilig - AREI conform
Onze diensten
Alle CDE-Diensten
⚡ Nieuwe stopcontacten & lichtpunten


Extra stopcontacten, wand- of plafondverlichting nodig? Veilige uitbreiding van je bestaande installatie.


🌿 Elektriciteit buiten
Plaatsing van buitenstopcontacten en tuinverlichting zoals spots, gevelverlichting of padverlichting. Veilig, duurzaam en afgestemd op jouw tuin of terras.


🔄 Zekeringkast & kringen
Vervangen, uitbreiden of aanpassen van zekeringkasten, automaten en differentiëlen.
🔌 Herstellen van elektrische storingen


Opsporen en verhelpen van kortsluiting, defecte schakelaars of stopcontacten.
🛡️ Keuring & Veiligheid
Voorbereiding op elektrische keuringen, controle van aarding en differentieelschakelaars.


🌐 Netwerk & Databekabeling
Aanleggen van internet- en netwerkbekabeling.


📐 Elektrische schema’s & plannen
Opmaak van duidelijke elektrische tekeningen voor nieuwbouw, renovatie of uitbreiding.


🗂️ As-built plannen
Beschikt u over een klad plan op papier en wilt u dit laten digitaliseren?


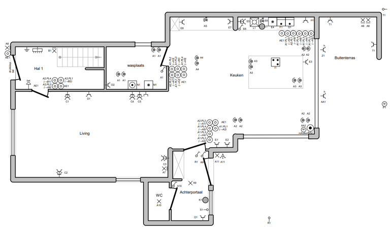
Ons werk
Een selectie van elektrische renovaties en nieuwbouwinstallaties.




































Contact
Vraag gerust info of maak een afspraak
© 2025. All rights reserved.
Alle merknamen zijn eigendom van hun respectievelijke eigenaars.
CDE Elektriciteitswerken is een onafhankelijke installateur; producten worden aangekocht via erkende groothandels en verkocht in het kader van onze diensten.
CDE Elektriciteitswerken – eenmanszaak
Uitgebaat door Christophe Minjauw
Ondernemingsnummer: 1027.310.469
BTW : BE1027.310.469.
E-mail: info@cde-elektriciteitswerken.com
Mob: +32 469 11 72 01
